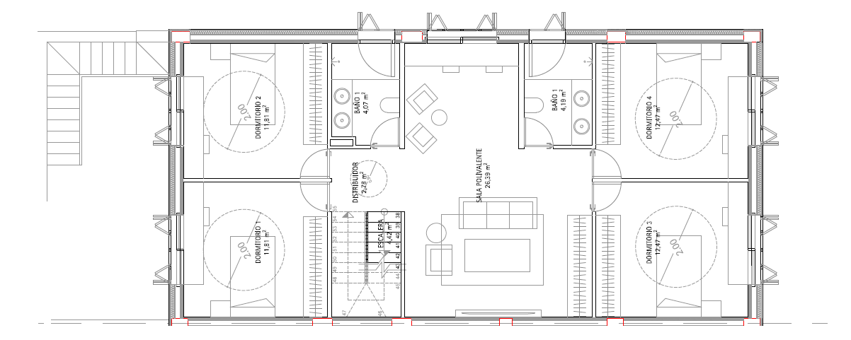
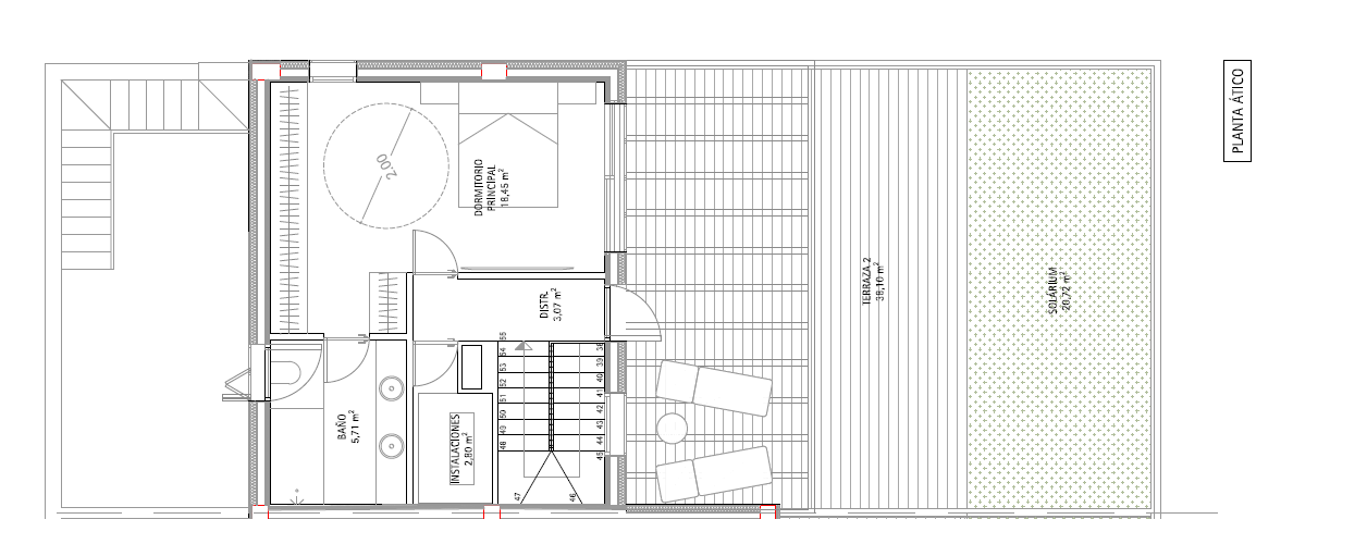
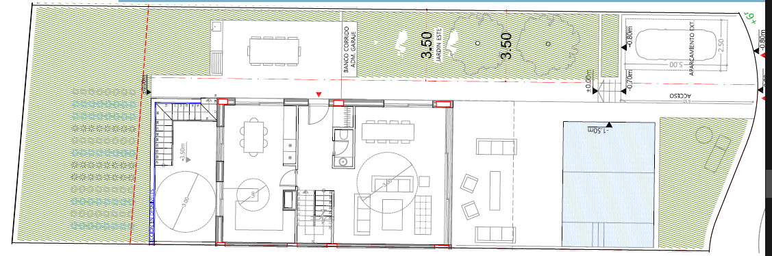
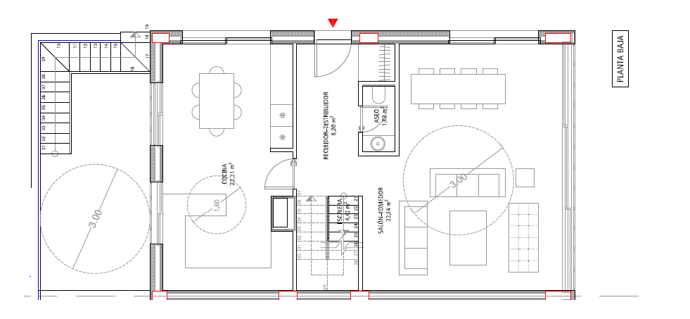
El proyecto en Aravaca comprende una colonia de 10 viviendas unifamiliares pareadas, ubicadas en la calle Teresa Orozco. Estas viviendas destacan por su diseño equilibrado y moderno, que combina materiales pétreos, metálicos y de madera, creando una estética armoniosa y elegante. La estructura y las ventanas balconeras permiten diversas distribuciones, adaptándose fácilmente a los cambios familiares.
El entorno es exclusivo y tranquilo, con acceso a la Casa de Campo, proporcionando numerosas oportunidades de ocio al aire libre. La comunidad vecinal activa y los sistemas de vigilancia garantizan seguridad y un ambiente acogedor. En las cercanías se encuentran prestigiosas instituciones educativas como el Colegio Internacional SEK y el Colegio Americano de Madrid, así como una variedad de servicios y comodidades, incluyendo supermercados, restaurantes y el centro comercial Zielo Shopping Pozuelo.
Las viviendas cuentan con excelentes conexiones de transporte, como la estación de Cercanías de Aravaca y las autopistas A-6 y M-40. Además, disponen de instalaciones deportivas y sanitarias de alta calidad, como el Hospital Universitario La Zarzuela.
Cada vivienda integra el jardín con el salón y la terraza con el ático, promoviendo un estilo de vida que convierte el hogar en un lugar de encuentro y crecimiento personal, incorporando actividades modernas como cocinar, ver series en familia, estudiar, teletrabajar y disfrutar de la música bajo las estrellas.

mariajose@agora-grupo.com
620 09 00 59
| Cookie | Duración | Descripción |
|---|---|---|
| TawkConnectionTime | session | Tawk.to, a live chat functionality, sets this cookie. For improved service, this cookie helps remember users so that previous chats can be linked together. |
| Cookie | Duración | Descripción |
|---|---|---|
| _ga | 2 years | The _ga cookie, installed by Google Analytics, calculates visitor, session and campaign data and also keeps track of site usage for the site's analytics report. The cookie stores information anonymously and assigns a randomly generated number to recognize unique visitors. |
| _gat_gtag_UA_186174718_1 | 1 minute | Set by Google to distinguish users. |
| _gid | 1 day | Installed by Google Analytics, _gid cookie stores information on how visitors use a website, while also creating an analytics report of the website's performance. Some of the data that are collected include the number of visitors, their source, and the pages they visit anonymously. |
| CONSENT | 2 years | YouTube sets this cookie via embedded youtube-videos and registers anonymous statistical data. |
| Cookie | Duración | Descripción |
|---|---|---|
| VISITOR_INFO1_LIVE | 5 months 27 days | A cookie set by YouTube to measure bandwidth that determines whether the user gets the new or old player interface. |
| YSC | session | YSC cookie is set by Youtube and is used to track the views of embedded videos on Youtube pages. |
| yt-remote-connected-devices | never | YouTube sets this cookie to store the video preferences of the user using embedded YouTube video. |
| yt-remote-device-id | never | YouTube sets this cookie to store the video preferences of the user using embedded YouTube video. |
| Cookie | Duración | Descripción |
|---|---|---|
| twk_idm_key | session | No description |